Kirche St. Kilian
<HTML> <iframe width=„300“ height=„300“ frameborder=„0“ scrolling=„no“ marginheight=„0“ marginwidth=„0“ src=„https://www.openstreetmap.org/export/embed.html?bbox=9.425732195595629%2C49.430668189060896%2C9.42849487088097%2C49.43111301469241&layer=mapnik&marker=49.43089060238086%2C9.427113533238298“ style=„border: 1px solid black“></iframe><br/><small><a href=„https://www.openstreetmap.org/?mlat=49.43089&mlon=9.42711#map=19/49.43089/9.42711“>Größere Karte anzeigen</a></small> </HTML>
Ersterwähnung:
741/42 stattet Karlmann das neu gegründete Bistum mit 26 Kirchen und anderen Einkünften aus königlichem Besitz aus. Darunter befindet sich auch die dem St. Martin geweihte „Basilika“ in Burchaim (Osterburken). Die Urkunde der Schenkung ist nicht erhalten, aber eine Bestätigung der Besitzverhältnisse durch Ludwig den Frommen im Jahr 8221)
| Holzbau2) | wohl 8. Jh. - vermutet | |
| Steinbau I3) | vor 1000 | Kirche: 16 x 7,5 m |
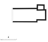
| Steinbau II4) | 2. H. 11. - 12. Jh. | Kirche: 17,4 x 9,4 m Chor: 5,5 x 6,15 m |
| Steinbau IIa5) | ? | Chor verbreitert auf 7,30 m Sakristei angebaut |
| Steinbau IIb6) | 1588 | Turm auf Westseite 6,3 x 6,3 m |
| Steinbau III7) | 1681-83 | |
| Steinbau IV | 1845/68) | |
| Wachterbau | 1970 |
Wechsel des Patrozinium möglicherweise mit Umbau von Steinbau I zu Steinbau II; die Baumassnahme und Umwidmung würde dann in die Zeit des Höhepunktes der Kiliansverehrung fallen.9)
Glocken
Funde aus der Kirche
Römische Inschriften, die beim Abriss der Kirche gefunden wurden. In welchen Fundamenten die Inschriften verbaut waren, war nicht mehr feststellbar. Eine zeitliche Eingrenzung, wann die Spolien verwendet wurden, ist somit nicht möglich.
Bauphasen
Holzkirche?

Eine ältere Holzkirche wird vermutet, konnte aber in dem kleinen Ausschnitt der Grabung nicht nachgewiesen werden. Ein schwachen Hinweis auf einen möglichen Vorgängerbau könnte eine im Westen unter dem ältesten Fußboden liegende Grabgrube geben. Beim derzeitigen Forschungsstand ist eine verläßliche Aussage jedoch nicht möglich.10)
Steinbau I (vor 1000)
Steinbau II (12. Hälfte 11./12. Jahrh.)
Umbau:
um 1382 Zerstörungen während des Krieges zwischen Adolf I von Nassau (Erzbischof in Mainz) und Kurfürst Rupprecht II in Osterburken11), dies macht möglicherweise die Reparatur der Phase II zu IIa/b nötig.12)
Steinbau III (1681/83)
Eintrag im Taufbuch der Pfarrei Osterburken 1732: „Im Jahre 1682 wurde unsere Burkheimer Pfarrkirche am 5. September konsekriert. Vorgenannte wurde Grund auf neu gebaut.“ Das Konsekrationsbuch im Würzburger Diözesanarchiv bestätigt und berichtigt das Ereignis dahin, daß die Kirche am 3. Sept. 1682 konsekriert wurde (St. Kilian) und den Hl. Burkhard als 2. Kirchenpatron erhielt.13)
Bei einem Unwetter 1694 wurde das Kirchendach zerstört und der Turmhelm abgerissen. Während das Dach bald erneuert wurde, dauerte der ruinöse Zustand des Turms noch bis 1715 an . Erst „1731“ (vgl. Zahl auf einem Quaderstein der südlichen Ecke des Kirchenturms) sind alle Schäden behoben.14)
Bereits 1782 wird die Kirche als zu klein bezeichnet. Der beklagte ruinöse Zustand der Kirche wurde immer schlechter. War schon die Kirche 1812 baufällig und für 1815 ein Neubau geplant, so schleppten sich die Planungen (vgl. Bericht bei Gebert S. 205 f.) bis zur Grundsteinlegung am 3. Juli 1845 hin.15)
In diesen Zeitraum fällt auch die Verlegung des Friedhofes vom Kirchhof auf das Areal des „Alten Friedhofes“
Steinbau IV (1845/46 - 1970)
Am 19. Nov. 1846 war die Benediktion der 5. Kirche. Unter Beibehaltung des Turmes, durch den der Eingang zur Kirche führte, entstand „ein nüchterner Zweckbau in klassizistischen Mischformen ohne religiösen Stil und Kunstgeschmack.“16)
Innenausstattung der Pfarrkirche
Bau V (1970)
6. Kirche St. Kilian
Die ursprünglich dem St. Martin geweihte Kirche war eine königliche Eigenkirche. Sie wurde 741/42 dem neu gegründeten Bistum Würzburg zugeteilt, dem Osterburken bis 1821 angehörte.
Im Mittelalter trat der würzburger Diözesansheilige St. Kilian an die Stelle von St. Martin als Kirchenpatron. Mehrere Kirchenbauten sind seit der Merowingerzeit erstellt worden. Zeitlich genau festlegen lassen sich die Kirchenbauten von 1681/82 und 1846. Die jetzige 1974 geweihte Kirche wurde von Manfred Schmitt-Fiebig (Erzbischöfliches Bauamt Heidelberg) entworfen und von Emil Wachter (Karlsruhe) mit Betonplastiken künstlerisch ausgestaltet.
Der heute freistehende Kirchenturm stammt aus dem Jahr 1588, die obere Partie von 1731.
Literatur
- Bellm 1975
R. Bellm, Osterburken, St. Kilian. Schnell & Steiner Kunstführer 1034 (1975). PDF - Lutz 1979
D. Lutz, Die Grabungen in der Kilianskirche zu Osterburken, Neckar-Odenwald-Kreis. Forschungen und Berichte der Archäologie des Mittelalters in Baden-Württemberg 6 (Stuttgart 1979) 129-156. ⇒ online - Sage/Dannheimer 1988
W. Sage u. H. Dannheimer, Kirchenbau. In: Die Bajuwaren. Von Severin bis Tassilo 488-788 (München/Salzburg 1988) 293-304.














